
Vega Garden
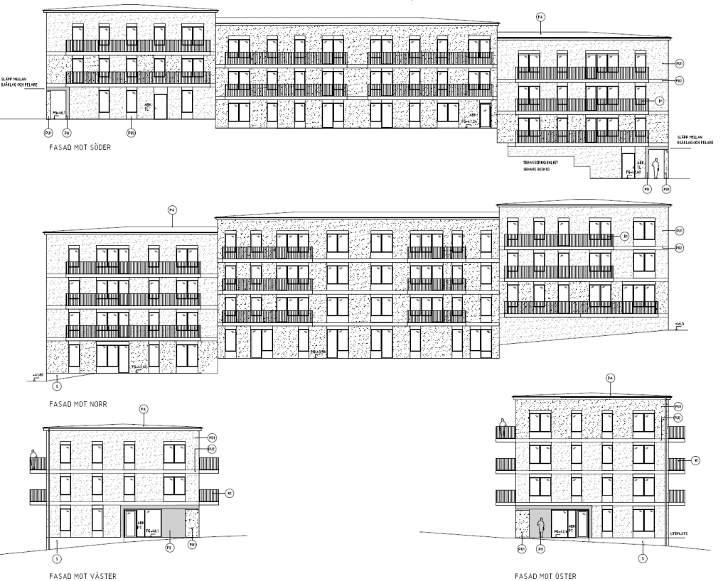
BkkAB har gjort en systemutredning för Vega Garden. Projektet består av 3 huskroppar, 4 våningar höga.
Vega Garden består av totalt 50 lägenheter fördelade i tre huskroppar. Husen uppförs av OBOS Kärnhem.
Arkitekt BL: Yellon AB

BkkAB har gjort en systemutredning för Vega Garden. Projektet består av 3 huskroppar, 4 våningar höga.
Vega Garden består av totalt 50 lägenheter fördelade i tre huskroppar. Husen uppförs av OBOS Kärnhem.
Arkitekt BL: Yellon AB